Biệt thự Mê Hương là một trong ba mẫu biệt thự cao cấp tại dự án Shoshin Bình Thanh, Hồ Hòa Bình, mang phong cách thiết kế hiện đại kết hợp với yếu tố thiên nhiên, tạo nên không gian sống đẳng cấp và thư thái.
Biệt thự Mê Hương tại Shoshin Bình Thanh mang đến hương thơm quyến rũ của những loài hoa nở rộ, giống như những cánh hồ điệp lượn bay trong không gian. Mang trong mình linh hồn của núi rừng Hòa Bình – Cây Mơ.

Được lấy cảm hứng từ kiến trúc mái Mường bản địa, Các không gian được bố trí hợp lý tận dụng tối đa ánh sáng và thông gió tự nhiên đảm bảo cho môi trường sống trong lành và thoải mái.
Các căn Biệt thự Mê Hương được bố trí chủ yếu với 2 loại view: view hồ và view núi.
Thiết kế hiện đại và sang trọng
Biệt thự Mê Hương nổi bật với lối thiết kế mở, tối ưu hóa không gian và ánh sáng tự nhiên. Với kiến trúc sang trọng, các căn biệt thự được xây dựng trên nền tảng những vật liệu cao cấp và tinh tế, mang đến sự hài hòa giữa tiện nghi hiện đại và thiên nhiên xung quanh. Mỗi chi tiết trong biệt thự đều được chăm chút kỹ lưỡng, từ nội thất đến ngoại thất, nhằm đáp ứng những tiêu chuẩn sống cao cấp nhất.

Thông tin về Biệt thự Mê Hương
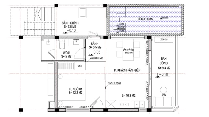
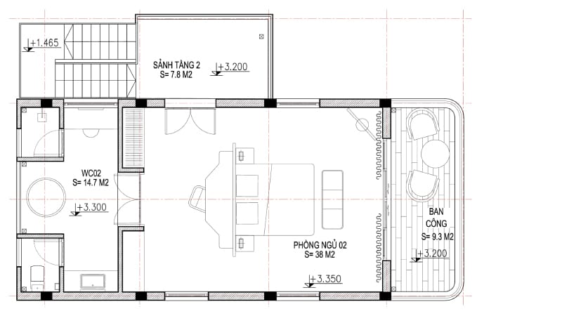
- D.tích mặt sàn: 150.8m2
- D.tích mặt sàn T1: 54.8m2
- D.tích mặt sàn T2: 96m2
Vị trí đắc địa với tầm nhìn tuyệt đẹp
Các căn biệt thự Mê Hương được đặt tại những vị trí có tầm nhìn đẹp nhất của dự án Shoshin Bình Thanh, giúp cư dân có thể ngắm nhìn toàn cảnh Hồ Hòa Bình và những dãy núi xanh ngắt phía xa. Từ ban công, phòng khách hay khu vực sân vườn, mọi góc nhìn đều mang lại cảm giác bình yên và thư giãn giữa thiên nhiên hùng vĩ.
Mặt bằng biệt thự


Tiện nghi đẳng cấp
Biệt thự Mê Hương không chỉ nổi bật bởi kiến trúc mà còn bởi hệ thống tiện nghi hiện đại. Các căn biệt thự được trang bị đầy đủ những tiện ích cao cấp như hồ bơi riêng, khu vực BBQ ngoài trời, phòng gym, và nhiều tiện nghi khác, tạo điều kiện thuận lợi cho cuộc sống nghỉ dưỡng hoàn hảo.
Không gian sống gần gũi với thiên nhiên
Mỗi căn biệt thự Mê Hương đều có sân vườn rộng rãi, giúp cư dân hòa mình vào không gian xanh mát, trong lành của vùng hồ Hòa Bình. Thiết kế biệt thự chú trọng vào việc kết hợp không gian trong nhà và ngoài trời, mang đến sự kết nối chặt chẽ giữa con người và thiên nhiên.
Biệt thự Mê Hương là lựa chọn lý tưởng cho những ai mong muốn một cuộc sống đẳng cấp, gần gũi với thiên nhiên, và là kênh đầu tư sinh lời hấp dẫn trong tương lai.







