Biệt thự Phong Hương tại Shoshin Bình Thanh Hoà Bình mang trong mình sự nhẹ nhàng và thanh thoát, gợi nhớ đến những cơn gió thoảng nhẹ mang theo hương sắc của hoa cỏ.

Biệt thự Phong Hương như một cánh hồ điệp đang lướt nhẹ trên bầu không khí trong lành, mang đến sự bình yên và an lành cho cuộc sống.
Các căn biệt thự Cánh Buồm được bố trí chủ yếu với 2 loại view: view hồ và view núi.

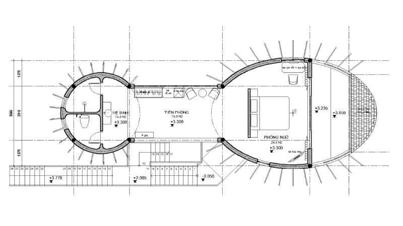
THÔNG TIN BIỆT THỰ PHONG HƯƠNG
- D.tích mặt sàn: 128m2
- D.tích mặt sàn T1: 56m2
- D.tích mặt sàn T2: 72m2
MẪU MẶT BẰNG BIỆT THỰ PHONG HƯƠNG









